Ruimtecapsulehuis van 38㎡
Een capsulehuis kan worden gedefinieerd als een zelfstandige leefruimte die is ontworpen om één persoon te huisvesten met alle essentiële voorzieningen die ze nodig hebben voor het dagelijks leven. Elke vierkante inch is zorgvuldig gepland om de functionaliteit te maximaliseren. Ze zijn uitgerust met bedden, opbergruimtes, badkamers en soms zelfs kleine keukens.
 
Ruimtecapsules worden veel gebruikt in toeristische resorts, campingscampings, creativeparks, winkels en andere velden, die ecologisch toerisme uitleggen, mobiele real estate en mobiele winkels voor karakteristieke steden, het creëren van een geïntegreerde 'MobileBusiness Opportunity ' van reizen, residentie en bedrijven. Ze kunnen vrijelijk worden gecombineerd en flexibel worden toegepast op verschillende culturele en toeristische projectbehoeften. LTI's volledig functioneel, bezet een klein gebied en vermindert ruimtebeperkingen.
  High -End Custom !!
  Algemene verzending !!
  Intelligentie van het hele huis !!
Veel mode -uiterlijk
Basisparameters
   Gebouwoppervlakte: 38 m²2
  Grootte: 11,5 m*3,3 m*3.2m (l*w*h)
  Bezettingsgrens: 2-4 (mensen)
  Krachtcapaciteit: 10 kW
   Nettogewicht: 10T
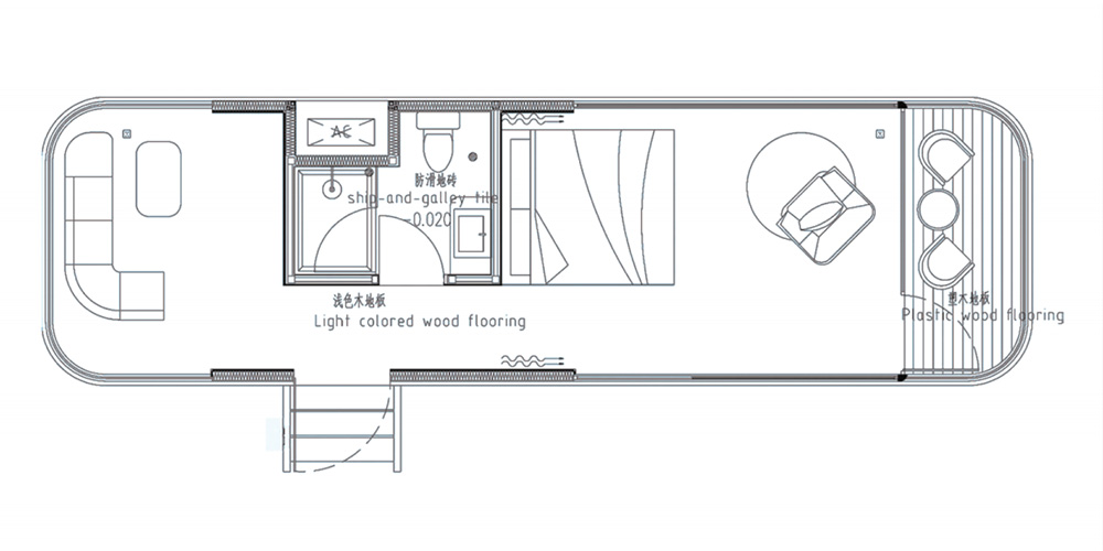
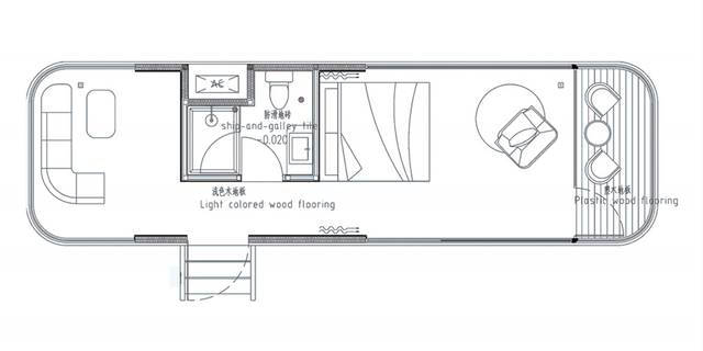
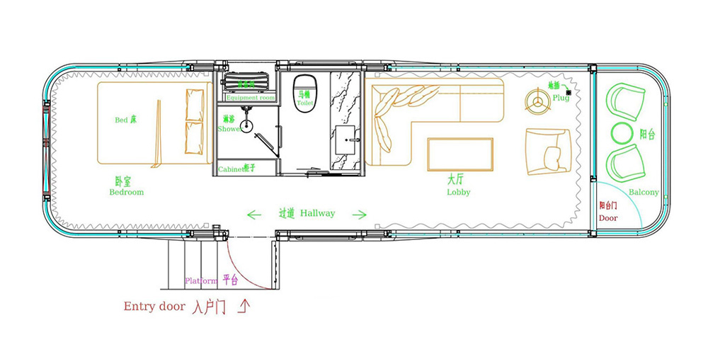
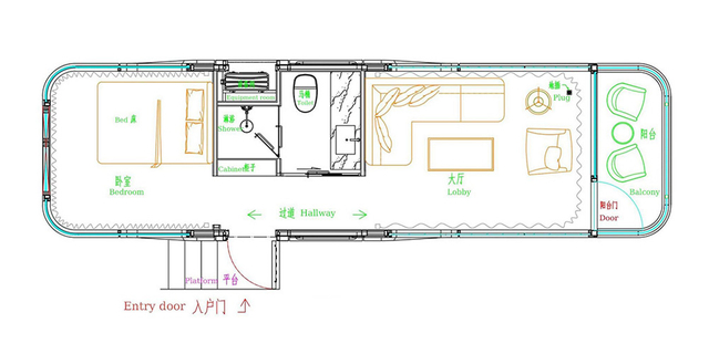
Meerdere plattegrond lay -outstijlen
   De standaardindeling omvat: slaapkamer, badkamer, woonkamer, balkon.
   Keukenopties: slaapkamer, badkamer, keuken, woonkamer.
  Opties voor twee slaapkamers: slaapkamer, slaapkamer, badkamer, balkon.
 
U kunt de lay -out ook aanpassen volgens uw eigen behoeften. Voel je vrij om ons ideeën te vertellen die je hebt!
Aanpasbare lay -out - mix en match indien nodig

Capsule huis materiaal specificaties

 
  • Exterieur foundation decoratie
 

Hoofdframesysteem

Seismisch gegalvaniseerd stalen frame structuursysteem

Buitenwandsysteem

LSFJ Aangepaste 2,5 mm luchtvaartaluminiumplaat

LSFJ Custom 2,0 mm luchtvaartaluminiumplaat

Gebroken brugdeur en raamsysteem

Dubbel gehard holle low-f glas met 6+24a+6 (UV-bescherming)+standaardscherm

Dubbel gehard holle low-f glas met 5+12a+5 (UV-bescherming)+standaardscherm

Isolatiesysteem

Polyurethaanschuim 100 mm

Glazen gordijnwandsysteem

Dubbele gehard holle 6+12a+6low-e glas

Dubbele gehard holle 5+12a+5low-e glas

Aangepaste toegangsdeur

Aangepaste beveiligingsdeur

Panoramisch balkon

Harded glazen vangrail + buiten 23 mm plastic houten vloer

 
  • Interieur Foundation Decoratie
 

Wandsysteem

Aangepast aluminium plafond, muurpaneel van het milieuvezel

Grondsysteem

Basiscementdrukplaat + waterdichte mortel bevat anti-crack staaldraadversterking + vochtbestendig kussen

Muurbasissubstraat

OSB Board Base Substraat Licht stalen kiel frame

Vloer

Milieuvriendelijke SPC -vloer

Plakje

Mat zwarte plintlijn

  • Badkamerconfiguratie
 

Geïntegreerd plafond

Cellulair geïntegreerd groot bord

Badkamer wandpaneel

Koolkristalplaat

Toiletafvoer

Waterdichte, vloerafvoer

Badkamerdeur

Badkamer privacy glazen deur

Badkamer vloer

Marmeren vloer

Badkamerapparatuur

Merk badkachel merk douchekop merk toiletmerk kraan

Badkamerplank

Douchebaanhoek Opbergrek

Waterverwarmer

Energiebesparende frequentie -conversiesnelheid warmte 50l wateropslagbrug

Badkamerkast

Aangepaste badkamerkast

Wastafel

High-end kunstmatige stenen bassin-tafel

ijdelheidspiegel

4K Eye Care Smart Led Beauty Mirror

Handdoekrek

Space Aluminium Light Luxe Bath Dwel Storage Rack

Droge oppervlakte + douchegebied stenen waterbalk

High -end marmer

Capsule House AI -systeem
Smart paneel, helderder thuisbesturing, comfort en gemak in één stem.
Intelligente controlepanel
Geïntegreerd geluidssysteem
Intelligente striplichten
Airconditioner
Frisse luchtsysteem
Automatisch gordijn
Elektrische vloerverwarming
Automatisch projectiescherm
Mobile Capsule House Solutions - Waarom kiezen voor ons!
 
CMW is een hoogwaardige geprefabriceerde huisfabrikant in Qingdao, de provincie Shandong, China. Het bedrijf is toegewijd aan uitgebreide diensten in Modular Construction en biedt OEM -diensten voor veel internationale merken op het gebied van residentiële constructie.     
 
Wat de producttechnologie betreft, hebben we al patenten. Wat de productlevering betreft, hebben we 100% geïndustrialiseerde productie bereikt. De afgewerkte producten zijn klaar voor gebruik zodra ze de fabriek verlaten en kunnen worden gebruikt zodra ze op het terrein zijn verbonden met water en elektriciteit. Dit heeft de leveringsefficiëntie sterk versneld, de schade aan het milieu veroorzaakt door projecten ter plaatse in de grootste mate verhinderd en realiseerde zich echt de ecologische ontwikkeling van culturele en toeristische projecten.
 
We bieden one-stop-service integratie van ontwerp, R&D, productie, levering, installatie en after-sales service.

Als een uitstekende fabrikant van op maat gemaakte stacaravans en capsulehuizen, kunnen we CAD- en 3D -ontwerpschetsen bieden om klanten te helpen het producteffect beter te zien en projectplannen te implementeren. We bieden one-stop-service integratie van ontwerp, R&D, productie, levering, installatie en after-sales service. 
 
4

Vier productiebases
40000
Fabrieksgebied
200
+
Fabrieksmedewerker
1200
+
Jaarlijkse output
  Gerelateerde producten
Dit veld is vereist
Ongeldig e -mailadres
Gespecialiseerd in product
Heeft u vragen? Neem contact met ons op voor hulp.

We kijken ernaar uit om met u samen te werken en betrouwbare oplossingen voor mobiele huis te bieden voor uw buitenactiviteiten. Bedankt!
Neem contact met ons op

Snelle links

Productcategorie

Neem contact met ons op

Toevoegen: 68 Qianwangang Road, Huangdao District, Qingdao City, Shandong Province
Tel: +86-185-6394-9513
Copyright © 2025 Qingdao Congmingwu International Trade Co., Ltd Alle rechten voorbehouden. Sitemap